'Hoe ontwerpen we een nieuw huis dat rust brengt en energie ondersteunt, zonder in te leveren op gebruiksgemak en dagelijks leven?'
'Ons nieuwe huis willen goed en doordacht aanpakken.'
Doordachte keuzes voor rust en dagelijks gebruik
Dit nieuwbouwproject in Bergeijk laat zien wat er mogelijk is wanneer een huis vanaf de eerste fase wordt benaderd als een geheel.
Voor Simone en Axel was bouwen geen zoektocht naar sfeer, maar een bewuste investering: minder prikkels, meer rust en een huis dat energie geeft in plaats van kost.
Ze wilden het goed doen en zo min mogelijk achteraf hoeven bijsturen. Mijn rol was om vanaf het begin richting en samenhang aan te brengen, zodat keuzes logisch, onderbouwd en toekomstbestendig zijn.
De uitdaging
Hoe ontwerpen we een nieuw huis dat rust brengt en energie ondersteunt, zonder in te leveren op gebruiksgemak en dagelijks leven?
De 1e schetsen
Ik start dit soort trajecten altijd met vragen. Wie zijn jullie, wat vinden jullie belangrijk, hoe verloopt een normale dag? Die gesprekken maken snel duidelijk waar de accenten moeten liggen en waar juist vereenvoudiging nodig is.
Het helpt om niet alles te willen, maar het juiste te kiezen.
Licht-, elektra- en schakelplan
In dit project vroeg het lichtplan al vroeg om duidelijkheid. Simone en Axel moesten op korte termijn keuzes aanleveren bij de projectontwikkelaar en bouwer. Dat betekende dat er tempo nodig was, maar wel met overzicht. Door direct te werken vanuit daglicht, functies en gebruik, konden we snel beslissingen nemen die ook op langere termijn kloppen.
Biophilic Design vormt in mijn werk geen laag, maar een manier van kijken. Door aandacht te hebben voor licht, routing en overgangen ontstaat vanzelf een indeling die rustiger aanvoelt en beter werkt in het dagelijks leven.
Elke keuze werd steeds opnieuw getoetst: draagt dit bij aan een huis dat ondersteunt?
De oplossing en nieuwe situatie
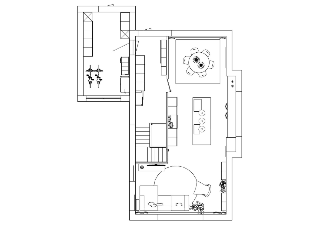
De kracht van dit ontwerp zit in de samenhang tussen binnenkomst, licht en gebruik. De hal is bewust ruimer opgezet en voorzien van voldoende opbergruimte. Dat lijkt een praktische ingreep, maar maakt in het dagelijks leven een groot verschil: binnenkomen wordt overzichtelijk en rustig.
Als aanvulling hierop ontstond de keukenbar. Een element dat Simone en Axel zelf niet hadden bedacht, maar dat nu een vanzelfsprekende plek krijgt in hun dagelijks leven. Niet als blikvanger, maar als functionele overgang tussen koken en leven. Een plek voor een ontbijt, een kort moment tussendoor, zonder dat het onrust brengt. Terwijl er optimaal een connectie is met binnen en buiten.
Beleving & routing
De woning is logisch opgebouwd. Binnenkomst biedt rust, daarna opent het huis zich stap voor stap. Licht ondersteunt de routing en zorgt voor overzicht. De leefruimte is open, maar niet leeg; functies zijn duidelijk, zonder hard gescheiden te zijn. Alles is gericht op gebruik, niet op effect.
Het resultaat
Een nieuwbouwwoning waarin rust en gebruik hand in hand gaan. Waar keuzes zijn gemaakt met aandacht voor vandaag én later.
- een helder lichtplan als basis;
- een indeling die prikkels beperkt;
- voldoende opbergruimte op de juiste plekken;
- plekken die uitnodigen tot dagelijks gebruik.
Dit project in Bergeijk laat zien dat nieuwbouw niet draait om méér, maar om beter.
Door vroeg de juiste vragen te stellen en keuzes te onderbouwen, ontstaat een huis dat rust geeft, goed werkt en het vertrouwen biedt dat de investering op de juiste plekken is gedaan.
